نظرة عامة
رقم ترخيص : 7200678759
نوع العقار
شقة
2
غرفة نوم
2
حمام
حالة العقار
قيد الإنشاء
63
المساحة
تحميل البروفايلرقم الترخيص :7200678759
وصف المنتج
مشروع عُمر – السليمانية من شركة المطور الماسي يجسّد أسلوب حياة عصري يجمع بين الفخامة والراحة في قلب جدة. بتصاميم راقية وتشطيبات فاخرة وموقع استراتيجي يتيح لك حياة متكاملة بالقرب من كل ما تحتاجه.
شقق للبيع غرفتين ثلاث اربع غرف للبيع في حي السليمانية بفضل الموقع المركزي والتصميم العصري، يمثل مشروع عُمر – السليمانية فرصة استثمارية مميزة لمن يبحث عن سكن فاخر وعائد مستقبلي مضمون في واحدة من أكثر مناطق جدة تطورًا ونموًا.
إنه مشروع يجمع بين الرفاهية الحضرية والراحة اليومية في مكان واحد.
شقق للبيع غرفتين ثلاث اربع غرف للبيع في حي السليمانية بفضل الموقع المركزي والتصميم العصري، يمثل مشروع عُمر – السليمانية فرصة استثمارية مميزة لمن يبحث عن سكن فاخر وعائد مستقبلي مضمون في واحدة من أكثر مناطق جدة تطورًا ونموًا.
إنه مشروع يجمع بين الرفاهية الحضرية والراحة اليومية في مكان واحد.
النماذج
المساحة :
63 م2
غرفة نوم :
2
حمام :
2
السعر :

المساحة :
67 م2
غرفة نوم :
2
حمام :
2
السعر :

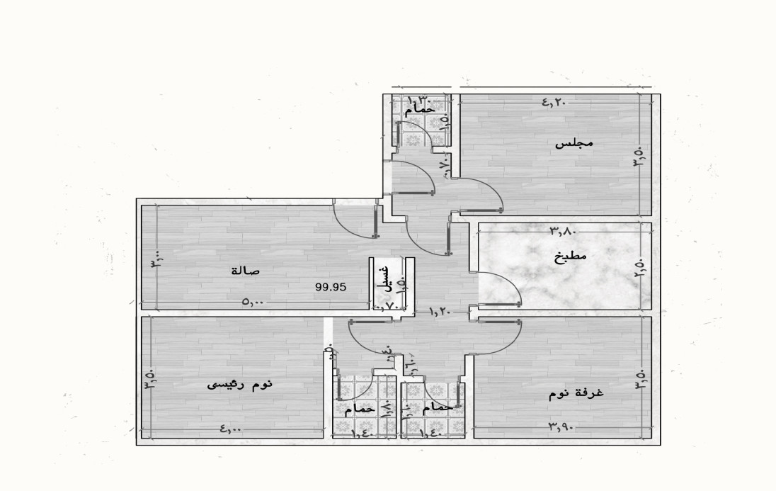
المساحة :
98 م2
غرفة نوم :
3
حمام :
3
السعر :

المساحة :
100 م2
غرفة نوم :
3
حمام :
3
السعر :

المساحة :
189 م2
غرفة نوم :
4
حمام :
4
السعر :

سمات الوحدة
داخلية
دخول ذكي
شبابيك واسعة
غاز مركزي
تكيف اسبليت
خارجية
مصاعد
الموقع
بالقرب من المول
خدمات
مكتمل الخدمات
مياة



