نظرة عامة
رقم ترخيص : 7200692854
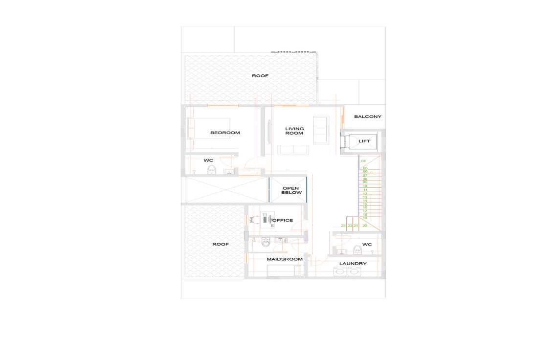
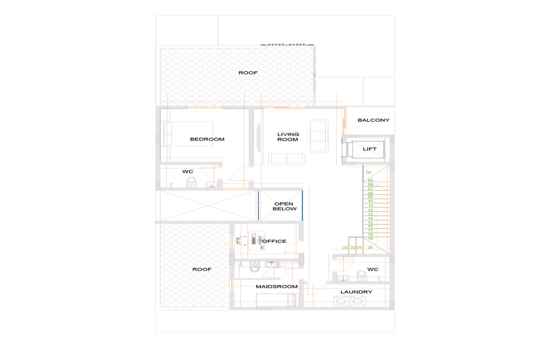
نوع العقار
فيلا
11
غرفة نوم
11
حمام
11
موقف سيارات
372
المساحة
حالة العقار
قيد الإنشاء
تاريخ الاستلام
2027/03/19
تحميل البروفايلرقم
الترخيص :7200692854
وصف المنتج
فلل فاخرة للبيع في حي أبحر الجنوبية فلل فاخرة للبيع في حي أبحر الجنوبية مشروع نقش أبحر المرحلة الثانية
في موقع استثنائي بالقرب من أهم الوجهات الحيوية شمال جدة، يقدّم لك مشروع نقش أبحر تجربة سكنية راقية تجمع بين التصميم العصري وجودة البناء.
وجهة سكنية واعدة تجمع بن الموقع الاستراتيجي وجودة الحياة، وتتميّز بـ:
موقع جغرافي مميز في أبحر الجنوبية 📍
تتميز بقربها من :
السوبر دوم شرم أبحر القناة المائية مشروع سيڤن الترفيهي ملعب الجوهرة
طريق الملك عبدالعزيز طريق الكورنيش
بيئة مثالية للسكن العائلي والاستثمار المستقبلي ✨
متاح الحجز الآن
الوحدات محدودة
البيع على الخارطة – برخصة وافي
الموقع: جدة - أبحر الجنوبية
في موقع استثنائي بالقرب من أهم الوجهات الحيوية شمال جدة، يقدّم لك مشروع نقش أبحر تجربة سكنية راقية تجمع بين التصميم العصري وجودة البناء.
وجهة سكنية واعدة تجمع بن الموقع الاستراتيجي وجودة الحياة، وتتميّز بـ:
موقع جغرافي مميز في أبحر الجنوبية 📍
تتميز بقربها من :
السوبر دوم شرم أبحر القناة المائية مشروع سيڤن الترفيهي ملعب الجوهرة
طريق الملك عبدالعزيز طريق الكورنيش
بيئة مثالية للسكن العائلي والاستثمار المستقبلي ✨
متاح الحجز الآن
الوحدات محدودة
البيع على الخارطة – برخصة وافي
الموقع: جدة - أبحر الجنوبية


