نظرة عامة
رقم ترخيص : 7200594612
نوع العقار
شقة
1
غرفة نوم
1
حمام
حالة العقار
جاهز
45
المساحة
تحميل البروفايلرقم الترخيص :7200594612
وصف المنتج
استديوهات وشقق للبيع في الفيحاء مشروع سلين – فرصة سكنية واستثمارية مثالية
إذا كنت تبحث عن وحدة سكنية عصرية تجمع بين الموقع المتميز، السعر المناسب، والتشطيبات الحديثة، فإن استديوهات وشقق للبيع في الفيحاء مشروع سلين بجدة تمثل خيارًا رائعًا سواء للسكن أو الاستثمار. المشروع يقدم وحدات بمساحات متنوعة تبدأ من 45 متر مربع وبأسعار تنافسية تبدأ من 195,000 ريال، مما يجعله مناسبًا للشباب، الأسر الصغيرة، والمستثمرين العقاريين على حد سواء
نظرة عامة على مشروع سلين في حي الفيحاء
مشروع سلين السكني أحد المشاريع الحديثة في حي الفيحاء – جدة، يتميز بموقع استراتيجي قريب من محطة قطار الحرمين، والمراكز التجارية، والمدارس، والمستشفيات، مما يجعله خيارًا مثاليًا للراغبين في الجمع بين الراحة وسهولة الوصول إلى الخدمات.
المشروع لا يقتصر فقط على توفير وحدات سكنية، بل يضم مجموعة من المرافق والخدمات التي ترفع من جودة الحياة اليومية للسكان مثل النادي الرياضي، اللاونج، والميني ماركت داخل المبنى مميزات مشروع سلين
1. موقع استراتيجي: قريب من الطرق الرئيسية ومحطة قطار الحرمين.
2. خدمات متكاملة: نادي رياضي، لاونج، ميني ماركت، دخول ذكي، كاميرات مراقبة.
3. أسعار مناسبة: تبدأ من 195,000 ريال فقط، ما يجعله من المشاريع السكنية الأكثر تنافسية في جدة.
4. تنوع الوحدات: استديوهات وشقق بمساحات مختلفة لتناسب جميع الاحتياجات.
5. تصميم عصري وتشطيبات فاخرة: استخدام مواد بناء عالية الجودة وتصميم داخلي مريح
إذا كنت تبحث عن وحدة سكنية عصرية تجمع بين الموقع المتميز، السعر المناسب، والتشطيبات الحديثة، فإن استديوهات وشقق للبيع في الفيحاء مشروع سلين بجدة تمثل خيارًا رائعًا سواء للسكن أو الاستثمار. المشروع يقدم وحدات بمساحات متنوعة تبدأ من 45 متر مربع وبأسعار تنافسية تبدأ من 195,000 ريال، مما يجعله مناسبًا للشباب، الأسر الصغيرة، والمستثمرين العقاريين على حد سواء
نظرة عامة على مشروع سلين في حي الفيحاء
مشروع سلين السكني أحد المشاريع الحديثة في حي الفيحاء – جدة، يتميز بموقع استراتيجي قريب من محطة قطار الحرمين، والمراكز التجارية، والمدارس، والمستشفيات، مما يجعله خيارًا مثاليًا للراغبين في الجمع بين الراحة وسهولة الوصول إلى الخدمات.
المشروع لا يقتصر فقط على توفير وحدات سكنية، بل يضم مجموعة من المرافق والخدمات التي ترفع من جودة الحياة اليومية للسكان مثل النادي الرياضي، اللاونج، والميني ماركت داخل المبنى مميزات مشروع سلين
1. موقع استراتيجي: قريب من الطرق الرئيسية ومحطة قطار الحرمين.
2. خدمات متكاملة: نادي رياضي، لاونج، ميني ماركت، دخول ذكي، كاميرات مراقبة.
3. أسعار مناسبة: تبدأ من 195,000 ريال فقط، ما يجعله من المشاريع السكنية الأكثر تنافسية في جدة.
4. تنوع الوحدات: استديوهات وشقق بمساحات مختلفة لتناسب جميع الاحتياجات.
5. تصميم عصري وتشطيبات فاخرة: استخدام مواد بناء عالية الجودة وتصميم داخلي مريح
النماذج
المساحة :
45 م2
غرفة نوم :
1
حمام :
1
السعر :

المساحة :
45 م2
غرفة نوم :
1
حمام :
1
السعر :

المساحة :
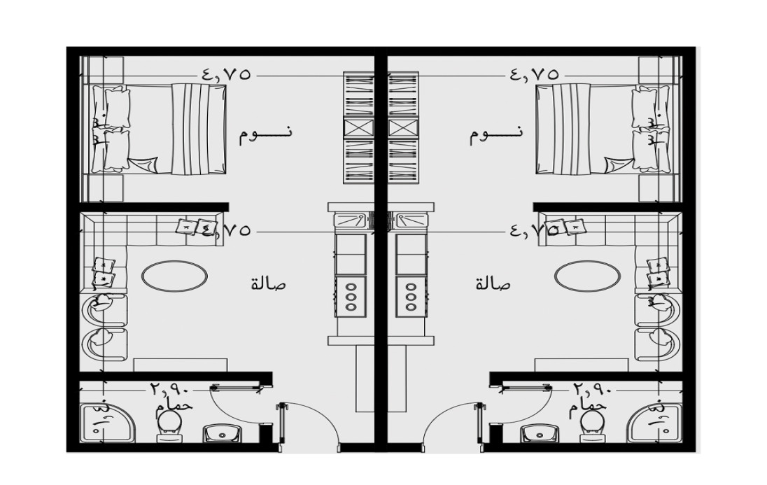
78 م2
غرفة نوم :
2
حمام :
2
السعر :

المساحة :
78 م2
غرفة نوم :
2
حمام :
2
السعر :

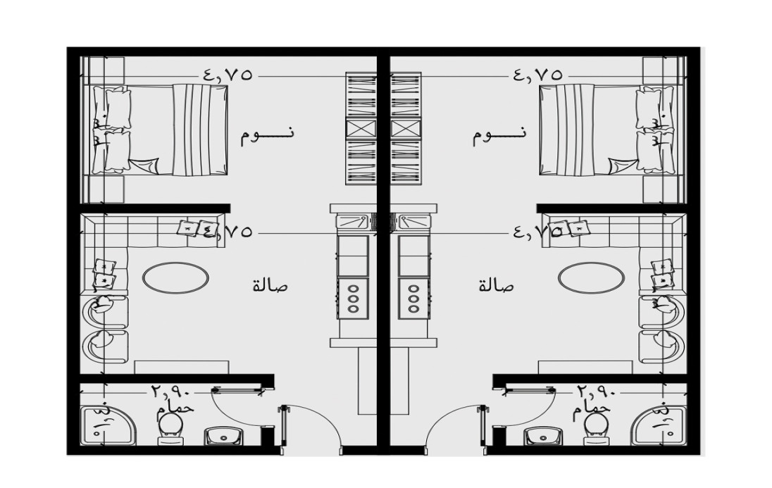
المساحة :
90 م2
غرفة نوم :
2
حمام :
2
السعر :

سمات الوحدة
داخلية
دخول ذكي
شبابيك واسعة
خزانات مستقلة
تكيف اسبليت
خارجية
مصاعد
الموقع
كاميرات مراقبة
يالقرب من مسجد وحديقة
خدمات
مكتمل الخدمات



