نظرة عامة
رقم ترخيص : 7200917719
نوع العقار
شقة
4
غرفة نوم
3
حمام
1
موقف سيارات
141
المساحة
حالة العقار
جاهز
تاريخ الاستلام
2027/04/01
تحميل البروفايلرقم
الترخيص :7200917719
وصف المنتج
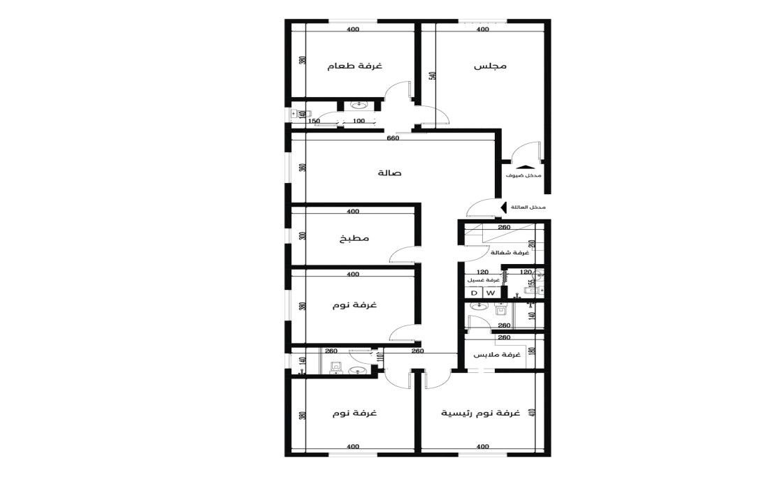
شقة أربع غرف للبيع في حي الصفا ضمن مشروع بيلسان 101 تعد خيارًا مثاليًا يجمع بين التصميم الحديث والموقع الاستراتيجي والخدمات المتكاملة. يتميز المشروع بتخطيط هندسي متقن وتشطيبات عالية الجودة تلائم احتياجات العائلات الباحثة عن الراحة والاستقرار. يقع مشروع بيلسان 101 في قلب حي الصفا، أحد أكثر الأحياء طلبًا في جدة، بفضل قربه من المدارس والحدائق والمساجد، إضافة إلى سهولة الوصول إلى الطرق الرئيسية مثل شارع أم القرى وشارع الشاكرين. هذا الموقع الحيوي يجعل السكن أكثر سهولة ويوفر جميع الخدمات اليومية على بُعد خطوات.
تتميز الشقة بوجود مدخلين مستقلين، وموقف خاص، ونظام دخول ذكي، إضافة إلى كاميرات مراقبة وخزانات علوية وسفلية. كما يقدم المشروع ضمانات ممتدة تشمل الهيكل الإنشائي، الكهرباء، السباكة، والمصعد، مما يعزز الثقة في جودة البناء.
مميزات الموقع:
على واجهتين (شمالية وجنوبية) بالقرب من جامع وحديقة ومجمع مدارس موقع حيوي قريب من جميع الخدمات نافذ على شارع أم القرى وشارع الشاكرين
ضمانات المشروع:
15 سنة على الهيكل الإنشائي 25 سنة على القواطع والأفياش 4 سنوات على تأسيس الكهرباء 4 سنوات على تأسيس السباكة سنتان ضمان على المصعد شامل قطع الغيار
الموقع: حي الصفا – جدة
تتميز الشقة بوجود مدخلين مستقلين، وموقف خاص، ونظام دخول ذكي، إضافة إلى كاميرات مراقبة وخزانات علوية وسفلية. كما يقدم المشروع ضمانات ممتدة تشمل الهيكل الإنشائي، الكهرباء، السباكة، والمصعد، مما يعزز الثقة في جودة البناء.
مميزات الموقع:
على واجهتين (شمالية وجنوبية) بالقرب من جامع وحديقة ومجمع مدارس موقع حيوي قريب من جميع الخدمات نافذ على شارع أم القرى وشارع الشاكرين
ضمانات المشروع:
15 سنة على الهيكل الإنشائي 25 سنة على القواطع والأفياش 4 سنوات على تأسيس الكهرباء 4 سنوات على تأسيس السباكة سنتان ضمان على المصعد شامل قطع الغيار
الموقع: حي الصفا – جدة
سمات الوحدة
داخلية
دخول ذكي
خزانات مستقلة
غاز مركزي
اسقف عالية
مدخلين
خارجية
الموقع
كاميرات مراقبة
يالقرب من مسجد وحديقة


